
外観

A号棟 リビング・ダイニング

A号棟 主寝室
ウェルフェアガーデン 用の美の家 永福町
LOT LAYOUT
区画図

MAP
現地案内図

OUTLINE
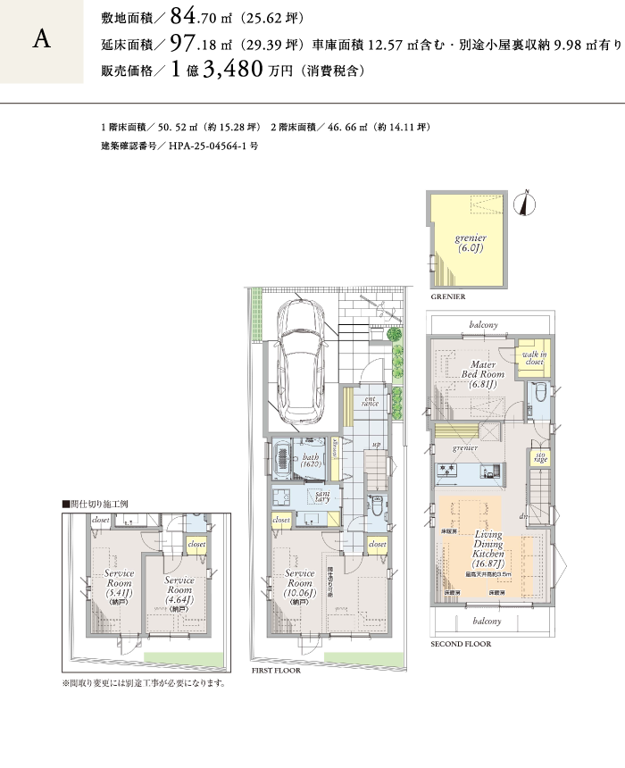
物件概要
- 販売価格
-
A号邸:13,480万円(税込)
- 交通
-
京王井の頭線「永福町」駅徒歩4分
- 販売邸数
- 1邸(総邸数2邸)
- 担当事業部
- 戸建事業部 本店
- 敷地面積
-
A号棟:84.70㎡(25.62坪)
- 建物面積
-
A号棟:97.18㎡(29.39坪)
車庫面積12.57㎡含む・別途小屋裏収納9.98㎡有り
- 土地権利
- 所有権
- 用途地域
- 第一種低層住居専用地域
- 建ぺい率
- 50%(準防火地域の準耐火構造により60%)
- 容積率
- 100%
- 公法制限
- 第1種高度地区、準防火地域
- 完成時期
-
令和7年12月
- 接面道路
- 北側約4.0m公道
- 販売店
- 三井不動産リアルティ株式会社 永福町センター
物件一覧へ戻る