創建ホームズ
TOP
用の美の家
土地へのこだわり
ものづくりへのこだわり
デザインへのこだわり
経年優化とアフターフォロー
物件情報
施工事例
テクノロジー
住宅保証制度
オーナーズ倶楽部
外観
外観
LDK
LDK
LDK
LDK
LDK
ウェルフェアガーデン 用の美の家 成城学園前
SALES SCHEDULE
販売スケジュール
4月18日(土)・4月19日(日)
12:00~16:00
販売店:東急リバブル株式会社 仙川センター
LOT LAYOUT
区画図
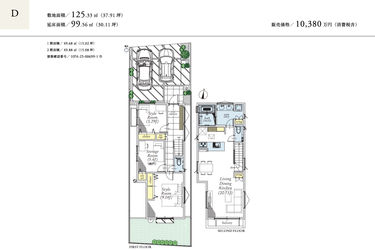
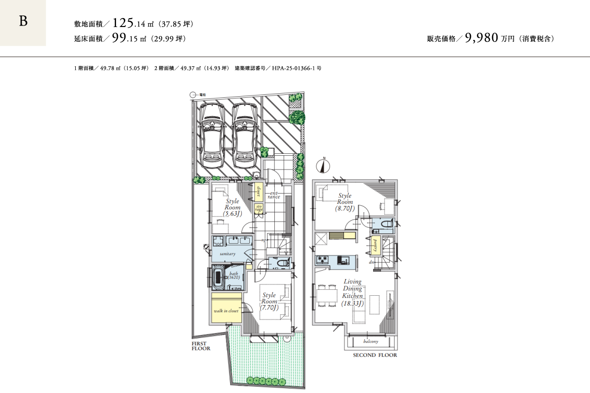
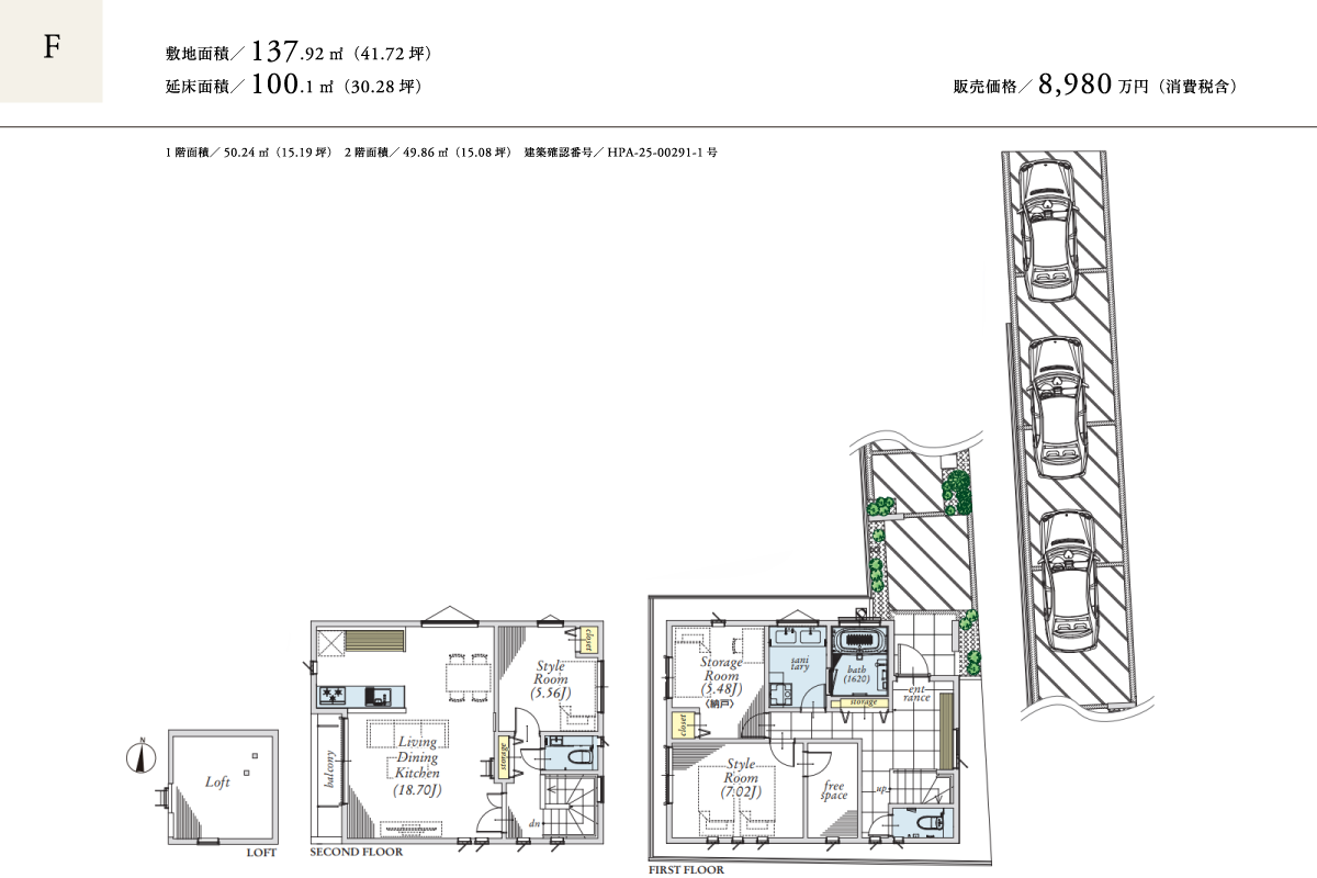
FLOOR PLAN
間取り図
MAP
現地案内図
OUTLINE
物件概要
販売価格
B号棟:9,680万円(税込)
E号邸:10,580万円(税込)
交通
小田急線「成城学園前」駅徒歩19分、京王線「仙川」駅徒歩20分
小田急バス「南入間町」徒歩3分「成城学園前」駅バス10~12分
販売邸数
2邸(総邸数6邸)
担当事業部
戸建事業部 本店
敷地面積
B号棟:125.14㎡(37.85坪)
E号棟:125.16㎡(37.86坪)
建物面積
B号棟:99.15㎡(29.99坪)
E号棟:99.18㎡(30.00坪)
土地権利
所有権
用途地域
第一種低層住居専用地域
建ぺい率
40%
容積率
80%
公法制限
準防火地域、第1種高度地区
完成時期
完成済
接面道路
北側約4.8~5.1m公道
販売店
東急リバブル株式会社 仙川センター
SALES SCHEDULE
販売スケジュール
4月18日(土)・4月19日(日)
12:00~16:00
販売店:東急リバブル株式会社 仙川センター
物件一覧へ戻る
COMPANY
会社概要
RECRUIT
採用情報
CONTACT
お問合せ
OWNER'S CLUB
オーナーズクラブ